Камеры сборные одностороннего обслуживания серии (КСО) «Циркон» 6(10) кВ.
Камеры сборные одностороннего обслуживания серии КСО «Циркон»
«Циркон» является полнофункциональным КСО со всеми присущими параметрами и характеристиками ячейки КСО-298. Серия КСО «Циркон» предназначена для комплектования распределительных устройств (РУ) напряжением 6 кВ или 10 кВ трехфазного переменного тока частотой 50 Гц в сетях с изолированной или заземленной через дугогасящий реактор или резистор нейтралью. Область применения КСО «Циркон» — это распределительные устройства электросетевых, промышленных и коммерческих организаций, объектов городской инфраструктуры, а также отдельные эксклюзивные проектные решения.
Применение КСО «Циркон» открывает расширенные возможности установки как в капитальных зданиях, габариты и стоимость возведения которых могут быть существенно снижены, так и в различных типах комплектных трансформаторных подстанций.
Эксплуатирующие организации заявили пожелание увеличить пропускную способность ячеек КРУ и КСО не увеличивая площадь помещения распределительного устройства. Поэтому у разработчика появился дополнительный стимул к появлению КСО «Циркон», и необходимая адаптация к условиям партнеров была произведена.
Самые массовые в эксплуатации варианты камер КСО проектировались и изготавливались в течение нескольких десятилетий. Однако при этом разработчики не снижали значительные габаритные размеры. Эволюция камеры КСО-298 у современных производителей не приблизила к идеалу и другие функциональные показатели. Проект КСО «Циркон» преодолел этот негатив: например, стандартные исполнения камер КСО имеют степень защиты IP20, тогда как шкаф «Циркон» достигает степени защиты IP41. Что очень существенно увеличивает безопасность эксплуатации.
Земля для строительства дорожает. Для снижения площадей застройки распределительных устройств необходимо снижать габариты самих камер. Занимаемые распределительными устройствами полезные площади, в связи с удорожанием отчуждаемых под строительство земель, требуют уменьшения габаритных размеров самой камеры распределительного устройства. При всем том для периодического обслуживания и ремонта электрооборудования необходимы удобство работ и комфортный доступ к элементам изделия.
По этой причине при разработке камеры КСО «Циркон» выработаны новые решения, при этом сохранена неизменной главная идеология проекта серии КСО. Применение в составе КСО «Циркон» элегазового выключателя нагрузки в сочетании с вакуумным выключателем потенциально раздвигает пределы номинальных параметров изделий.
Производятся КСО «Циркон» в исполнении на номинальный ток до 1250 А. Поставляются КСО «Циркон» отдельными шкафами, состав которых определяется конкретным заказом в соответствии с установленной формой опросного листа. Возможен вариант унификации ячейки КСО «Циркон» без вакуумного выключателя и релейного модуля, что придаёт ему функционал камеры КСО-393.
КСО «Циркон» не предназначены для работы:
- в среде, подвергающейся действию газов, испарений и химических отложений, разрушающих изоляцию и металл, в среде, подвергающейся усиленному загрязнению;
- в устройствах или установках специального назначения, например, электропечных установках, экскаваторных, корабельных и судовых распределительных устройствах и т.п.;
- в среде, опасной в отношении пожара или взрыва.
Конструкция КСО «Циркон» полностью соответствует требованиям ПУЭ (7 издание), ГОСТ 1516.3-96, ГОСТ 12.2.007.4-75.
Конструктивные особенности КСО «Циркон»
Компоновка ячейки КСО «Циркон» представляет собой соединённые модуль высоковольтного отсека и модуль цепей РЗА.
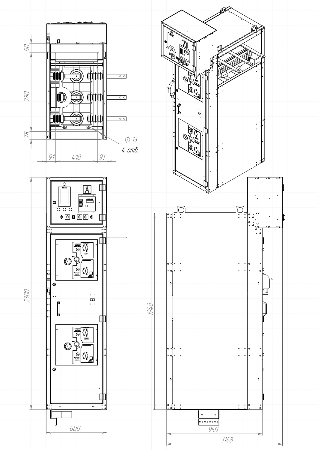
По реализованной схеме главных цепей высоковольтного модуля отсек сборных шин размещен над элегазовым блоком выключателя нагрузки. Под элегазовым блоком установлен вакуумный выключатель и трансформаторы тока. В качестве линейного разъединителя для кабельного присоединения 6-10 кВ применяется так же элегазовый блок. Внутренний объём шкафа использован для соединения высоковольтных элементов при помощи медных шин в твёрдой изоляции. Такое размещение компонентов в составе ячейки позволило создать малогабаритную камеру КСО шириной по фасаду 600 мм, глубиной по основанию 950 мм и высотой 1950 мм (без релейного отсека). Высота вместе с релейным модулем составит 2300 мм.
В исполнении КСО «Циркон», претендующей на замещение КСО-393, её габариты в миллиметрах соотношения ШхГхВ составят 600х950х1950.
Корпус КСО «Циркон» представляет собой сборную объемную самонесущую конструкцию, изготовленную из стального 2,0 - 3,0 миллиметрового листа, оцинкованного горячим методом. Узлы механизмов оцинкованы гальваническим методом. Элементы фасада покрыты порошковой полимерной краской с повышенной адгезией к металлу. Крепление элементов корпуса между собой осуществляется резьбовыми и заклепочными соединениями без применения сварки.
В КСО «Циркон» используется закрытый отсек сборных шин, что значительно повышает надежность, и защищает персонал от поражения в случае возникновения дугового замыкания.
Ключевым элементом конструкции является коммутационный элегазовый моноблок. Особенностью конструкции которого является комбинированное размещение выключателя нагрузки и его заземлителя в элегазовой изоляции, что позволило сохранить необходимое межполюсное расстояние. Моноблок снабжен системой механических и логических блокировок, а также интуитивно понятной мнемосхемой с механическими указателями положения главных контактов и заземлителя.
Доступ в высоковольтный отсек закрывается дверью с механическим замком и блокировкой открытия при включенном положении вакуумного выключателя. Отсеки кабельных присоединений и вакуумного выключателя находятся за одной дверью. В случае возникновения внутреннего дугового короткого замыкания выброс продуктов горения предусмотрен назад через разгрузочные отверстия на тыльной стороне КСО.
Заземление кабельной линии осуществляется с помощью элегазового блока или накладного заземлителя стационарного исполнения.
Релейный отсек – это отдельный модуль с аппаратурой вспомогательных цепей, установленный сверху высоковольтного модуля. В релейном отсеке размещаются приборы управления, защиты, сигнализации. Учёт электроэнергии выведен на дверь высоковольтного модуля.
Ошиновка
Комплектные распределительные устройства, собранные из камер КСО, комплектуются ошиновкой и торцевыми панелями, а при двухрядной установке камер – шинным мостом. Сборные шины выполняются шинами из меди или из алюминия, и крепятся на изоляторах. Требуемое сечение шин должно быть указано в опросном листе при заказе распределительного устройства. При изготовлении распределительного устройства двухрядного исполнения совместно с панелями может поставляться шинный мост. Необходимость его поставки должна быть оговорена в опросном листе с указанием длины и других параметров подключения.
Камеры и ячейки КСО «Циркон», исходя из требований Заказчика, могут включать в себя:
- высоковольтный вакуумный выключатель;
- трехполюсные выключатели нагрузки в элегазовом баке, имеющие заземляющие ножи и запираемый привод;
- трансформатор собственных нужд, измерительные трансформаторы;
- систему сборных шин с твёрдой и воздушной изоляцией;
- предохранители;
- разрядники (ограничители перенапряжений);
- конденсаторы статические;
- систему защиты и автоматики;
- счетчик электроэнергии;
- источник бесперебойного питания;
- шинные мосты для соединения ячеек при их двурядном размещении;
- систему телеметрии и удаленного управления коммутационными аппаратами;
- монтажные и эксплуатационные принадлежности.
КСО «Циркон» оснащается многоуровневой системой защиты оборудования, система блокировок препятствует выполнению ошибочных действий эксплуатирующего персонала.
Преимущества КСО «Циркон»
Малые габариты камеры КСО «Циркон» открывающие широкие возможности по её применению.
Упрощённая кинематическая схема повышает надёжность в эксплуатации.
Удобство обслуживания при уменьшенных габаритах.
Возможность оформления компоновки КСО «Циркон» без релейного модуля и вакуумного выключателя в качестве замены КСО-393.
Полный набор необходимых присоединений классического распределительного устройства.
Эффективная система механических и электромеханических блокировок для защиты от ошибочных и некорректных операций при обслуживании и ремонте.
Исполнение камеры КСО «Циркон» на номинальный ток до 1250 А, тогда как классические КСО-298 имеют предел в 1000 А.
Условия эксплуатации
КСО «Циркон» 6-10 кВ предназначено для установки внутри помещений при следующих условиях окружающей среды:
высота над уровнем моря – до 1000 м;
верхнее рабочее значение температуры окружающего воздуха – не выше +40 °С;
нижнее рабочее значение температуры окружающего воздуха – не ниже –25 °С;
относительная влажность воздуха – не более 80% при температуре +15 °С.
Тип атмосферы – II по ГОСТ 15150-69.

Пример записи условного обозначения: КСО Циркон -10-1250/25-114 У3 – комплектное распределительное устройство «Циркон» на номинальное напряжение 10 кВ, номинальный ток 1250 А, ток термической стойкости 25 кА со схемой главных цепей №114 климатического исполнения У3.
К комплекту ячейки КСО прикладывается следующая документация:
- руководство по эксплуатации, руководство по эксплуатации на основные комплектующие изделия, на которые предусмотрена предприятием-изготовителем поставка этих документов комплектно с изделиями;
- электрические схемы принципиальные;
- паспорт на комплектующие, входящих в заказ;
- сертификаты соответствия на КСО и комплектующие.
